ARCHITETTURA
RILIEVO ARCHITETTONICO
A partire dalla nuvola di punti generata, realizzo piante, prospetti e sezioni.
La restituzione grafica può essere fornita in formato CAD 2D o, su richiesta, attraverso modelli 3D.
Rilievo rustico - Vaglio
Famiglia Mayer




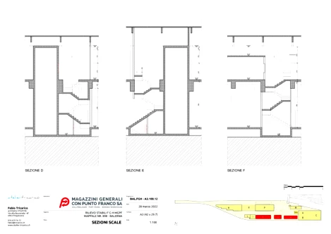
Rilievo stabile AB - Punto Franco
Stabio
Stabio
Studio ARC Atelier - Bioggio
Rilievo stabile Kessel Auto SA
Pambio - Noranco
Pambio - Noranco
Studio ARC Atelier - Bioggio
Rilievo portico chiesa Santa Maria Assunta
Villa Luganese
Villa Luganese
Studio Bassi & Galimberti - Lugano






Rilievo stabile P - Punto Franco
Balerna
Studio ARC Atelier - Bioggio
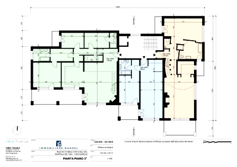
Rilievo stabile Costa del Sol
Castagnola
Studio ARC Atelier - Bioggio
Immobiliare Bandel
Rilievo stabile A/B/C - Punto Franco
Balerna
Studio ARC Atelier - Bioggio
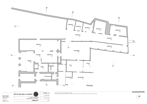
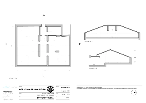
Rilievo stabile birrificio ODB
Bioggio
Studio ARC Atelier - Bioggio


Rilievo stabile F/G/H - Punto Franco
Balerna
Studio ARC Atelier - Bioggio
Rilievo villetta
Vernate
Architetto Alfio Norghauer - Castagnola
Rilievo chiesa Santa Agata
Tremona
Ing. geomatico Alessio Spataro

















Rilievo rustico
Dino
Architetto Alfio Norghauer - Castagnola
Rilievo villa
Montagnola
Architetto Igor Zorloni - Garzoni SA










MODELLAZIONE 3D + RENDERING
L'atelier si occupa soprattutto della visualizzazione architettonica e della grafica tridimensionale per ambienti esterni ed interni.
























FOTOGRAFIE DRONE
Eseguo fotografie o video ad alta qualità per la documentazione di cantiere, opere finite, prove a futura memoria o supporto per rilievi architettonici. Sono abilitato con autorizzazione federale UFAC.









